



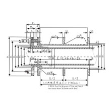
S312,S404型防水套管主要用于管道穿過墻壁之外有震動或有嚴密防要求的工況,它一方面有利于管道的安裝拆卸以及防滲漏,另一方面也保護了建筑物不受水和震動的損害。
安裝數據表
| 名稱 | 柔性防水套管 | 剛性防水套管 | |||||||
| 型號 | S312-R | S312-G | |||||||
| DN | 長度 | 適用墻壁厚度 | 適用管子外徑 | 翼環直徑 | 長度 | 適用管子直徑 | 翼環直徑 | ||
| A型 | B型 | ||||||||
| 50 | 380 | 300 | 60 | 177 | 200 | 60 | 60 | 225 | 225 |
| 70 | 380 | 300 | 73 | 190 | 200 | 73 | 73 | 238 | 238 |
| 80 | 384 | 300 | 89 | 217 | 200 | 89 | 93 | 251 | 251 |
| 100 | 384 | 300 | 108 | 236 | 200 | 108 | 118 | 280 | 289 |
| 125 | 386 | 300 | 133 | 257 | 200 | 133 | 143 | 301 | 315 |
| 150 | 386 | 300 | 159 | 280 | 200 | 159 | 169 | 324 | 340 |
| 200 | 386 | 300 | 219 | 350 | 200 | 219 | 220 | 394 | 394 |
| 250 | 388 | 300 | 273 | 402 | 200 | 273 | 171.6 | 446 | 446 |
| 300 | 388 | 300 | 325 | 462 | 200 | 325 | 322.8 | 498 | 498 |
| 350 | 392 | 300 | 377 | 511 | 200 | 377 | 374 | 567 | 567 |
| 400 | 392 | 300 | 426 | 565 | 200 | 426 | 425.6 | 621 | 621 |
| 450 | 394 | 300 | 480 | 615 | 200 | 480 | 476.8 | 671 | 671 |
| 500 | 394 | 300 | 530 | 673 | 200 | 530 | 528 | 720 | 720 |
| 600 | 407 | 300 | 630 | 787 | 200 | 630 | 630.8 | 822 |
810 |
| 700 | 409 | 300 | 720 | 877 | 200 | 720 | 733 | 911 | 924 |
| 800 | 411 | 300 | 820 | 987 | 200 | 820 | 836 | 1011 | 1027 |
| 900 | 413 | 300 | 920 | 1087 | 200 | 920 | 939 | 1113 | 1132 |
| 1000 | 415 | 300 | 1020 | 1187 | 200 | 1020 | 1041 | 1213 | 1234 |
主要連接尺寸
| 名稱 | 柔性防水套管 | 剛性防水套管 | |||||||
| 型號 | S404-R | S404-G | |||||||
| DN | 長度 | 適用墻壁厚度 | 適用管子外徑 | 翼環直徑 | 長度 | 適用管子直徑 | 翼環直徑 | ||
| A型 | B型 | A型 | B型 | ||||||
| 50 | 380 | 300 | 60 | 200 | 200 | 60 | 60 | 225 | 225 |
| 65 | 380 | 300 | 73 | 200 | 200 | 75.5 | 75.5 | 230 | 238 |
| 80 | 384 | 300 | 89 | 235 | 200 | 89 | 93 | 250 | 251 |
| 100 | 384 | 300 | 108 | 255 | 200 | 108 | 118 | 270 | 289 |
| 125 | 386 | 300 | 133 | 290 | 200 | 133 | 143 | 290 | 315 |
| 150 | 386 | 300 | 159 | 315 | 200 | 159 | 169 | 330 | 340 |
| 200 | 386 | 300 | 219 | 375 | 200 | 219 | 220 | 385 | 394 |
| 250 | 388 | 300 | 273 | 435 | 200 | 273 | 271.6 | 435 | 446 |
| 300 | 388 | 300 | 325 | 495 | 200 | 325 | 322.8 | 500 | 498 |
| 350 | 392 | 300 | 377 | 545 | 200 | 377 | 374 | 550 | 456 |
| 400 | 392 | 300 | 426 | 600 | 200 | 426 | 425.6 | 600 | 521 |
| 450 | 394 | 300 | 480 | 650 | 200 | 480 | 476.8 | 650 | 571 |
| 500 | 394 | 300 | 530 | 705 | 200 | 530 | 528 | 705 | 720 |
| 600 | 407 | 300 | 630 | 820 | 200 | 630 | 630.8 | 820 |
810 |
| 700 | 409 | 300 | 720 | 910 | 200 | 720 | 733 | 910 | 924 |
| 800 | 411 | 300 | 820 | 1020 | 200 | 820 | 836 | 1020 | 1027 |
| 900 | 413 | 300 | 920 | 1120 | 200 | 920 | 939 | 1120 | 1132 |
| 1000 | 415 | 300 | 1020 | 1220 | 200 | 1020 | 1041 | 1041 | 1234 |
