



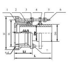
| 序號No. | 名稱Name | 數量Quantity | 材料Material |
| 1 | 本體Body | 1 | QT400-15,Q235A,ZG230-450,20 |
| 2 | 密封圈Gasket | 1 | NBR |
| 3 | 壓蓋Cover | 1 | QT400-15,Q235A,ZG230-450,20 |
| 4 | 限位短管Limited short pipe | 1 | Q234A,20,16Mn |
| 5 | 螺母Nut | 4n | Q235A,20,1Cr8Ni9Ti |
| 6 | 長螺柱Long Stud | n | Q235A,35,1Cr8Ni9Ti |
| 7 | 螺柱bolt | n | Q235A,35,1Cr8Ni9Ti |
主要連接尺寸
| 稱尺寸 DN |
管子外徑DW | 外形尺寸 | 伸縮量δ | 法蘭連接尺寸 | ||||||||
| DW | D0 | L | L2 | L1 | 0.6Mpa | 1.OMpa | ||||||
| D | K | n-do | D | K | n-do | |||||||
| 65 | 76 | 76 | 340 | 340 | 105 | ±25 | 160 | 130 | 4-¢14 | 185 | 145 | 4-¢18 |
| 80 | 89 | 89 | 190 | 150 | 4-¢18 | 200 | 160 | 8-¢18 | ||||
| 100 | 108 | 108 | 21O | 170 | 220 | 180 | ||||||
| 114 | 114 | |||||||||||
| 125 | 133 | 133 | 240 | 200 | 8-¢18 | 250 | 210 | |||||
| 140 | 140 | |||||||||||
| 150 | 159 | 159 | 265 | 255 | 285 | 240 | 8-¢23 | |||||
| 168 | 168 | |||||||||||
| 200 | 219 | 219 | 320 | 280 | 340 | 295 | ||||||
| 250 | 273 | 273 | 375 | 335 | 12-¢18 | 395 | 350 | 12-¢23 | ||||
| 300 | 325 | 325 | 350 | 370 | 130 | ±32.5 | 440 | 395 | 12-¢23 | 445 | 400 | 16-¢22 |
| 350 | 377 | 377 | 490 | 445 | 505 | 460 | 16-¢26 | |||||
| 400 | 426 | 426 | 540 | 495 | 16-¢23 | 565 | 515 | 20-¢26 | ||||
| 450 | 480 | 480 | 595 | 550 | 615 | 565 | ||||||
| 500 | 530 | 530 | 645 | 600 | 20-¢23 | 670 | 620 | 20-¢30 | ||||
| 600 | 630 | 630 | 755 | 705 | 20-¢27 | 780 | 725 | 24-¢30 | ||||
| 700 | 720 | 720 | 860 | 810 | 24-¢27 | 895 | 840 | 24-¢33 | ||||
| 800 | 820 | 820 | 590 | 600 | 220 | ±65 | 975 | 920 | 24-¢30 | 1015 | 950 | 28-¢33 |
| 900 | 920 | 920 | 1075 | 1020 | 1115 | 1015 | 28-¢36 | |||||
| 1000 | 1020 | 1020 | 1175 | 1120 | 28-¢30 | 1230 | 1160 | 28-¢36 | ||||
| 1200 | 1220 | 1220 | 1405 | 1340 | 32-¢33 | 1455 | 1380 | 32-¢40 | ||||
| 1400 | 1420 | 1424 | 640 | 1630 | 1560 | 36-¢36 | 1675 | 1590 | 36-¢42 | |||
| 1600 | 1620 | 1624 | 1830 | 1760 | 40-¢36 | 1915 | 1820 | 40-¢48 | ||||
| 1800 | 1820 | 1824 | 2045 | 1970 | 44-¢39 | 2115 | 2020 | 44-¢48 | ||||
| 2000 | 2020 | 2026 | 2265 | 2180 | 48-¢42 | 2325 | 2230 | 48-¢48 | ||||
| 2200 | 2220 | 2226 | 2475 | 2390 | 52-¢42 | 2550 | 2440 | 52-¢56 | ||||
| 2400 | 2420 | 2426 | 2685 | 2600 | 56-¢42 | 2760 | 2650 | 56-¢56 | ||||
| 2600 | 2620 | 2626 | 600 | 710 | 240 | ±75 | 2905 | 2810 | 60-¢48 | 2960 | 2850 | 60-¢56 |
| 2800 | 2820 | 2826 | 3115 | 3020 | 64-¢48 | 3180 | 3070 | 64-¢56 | ||||
| 3000 | 3020 | 3026 | 3315 | 3220 | 68-¢48 | 3405 | 3290 | 68-¢60 | ||||
| 3200 | 3220 | 3230 | 3525 | 3430 | 72-¢48 | - | - | - | ||||
| 3400 | 3420 | 3432 | 3735 | 3640 | 76-¢48 | - | - | - | ||||
| 3600 | 3620 | 3632 | 3970 | 3860 | 80-¢56 | - | - | - | ||||
